FLAT BUSH HOUSE PROJECT 2
PROJECT DETAILS
Status | Complete | |
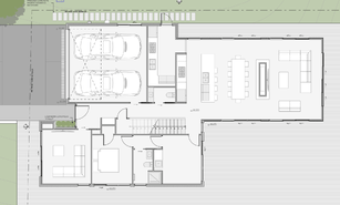
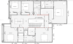
Description | 2 levels, single house | |
Location | Flat Bush | |
Completed | 2024 |
The Flat Bush house project is surrounded by beautiful scenic views located in the developing area of Flat Bush. This is a luxurious 2-level, single house build offering a double garage and an impressive six bedrooms. This architecturally designed home reflects a modern, spacious, and family-friendly lifestyle with the security of well crafted, timber frame construction. Flat Bush is a newly developed residential area, establishing itself as a modern residential community in Auckland and a desirable place to live. The Longevity team is working hard at site to bring this 2-level Flat Bush house to life.













